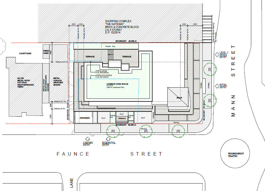
243 - 249 Mann Street, Gosford Project Description A nine storey building of 52 units and three storey basements for car parking with retail shops at ground level. < Back to Apartments < Previous Project Next Project >